









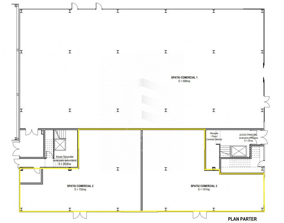
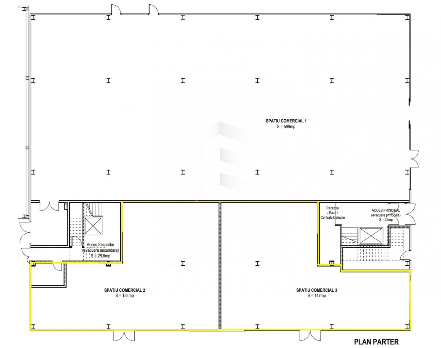
Spatiu Comercial 300mp, ideal pentru investitie, INCHIRIAT CU 4000 EURO PE LUNA, cu un randament de recuperare al investitiei de aprox 10 ANI, situat la un nod rutier important, stradal pe Sos Stefanesti la intersectie cu str Sinaia, cea care duce direct in zona industriala si in Autostrada A3 Bucuresti Ploiesti, cu deschidere la doua strazi si multiple facilitati, conectata la toate utilitatile.
DISPUNE INCLUSIV DE AUTORIZATIE ISU
Accesul este facil catre Centura, iar prin Autostrada se ajunge in cateva minute in zona Aviatiei, Floreasca, Pipera si Tei. Imobilul este finalizat in acest an, in curs de amenajare pentru deschidere. Benficiaza de doua cai de acces, 4 locuri de parcare incalzire in pardoseala, canalizare, apa, gaz, placat cu gresie, in prezent open-space.
SPATIUL SE POATE COMPARTIMENTA IN DOUA UNITATI A CATE 150MP PENTRU FIECARE SI SE POATE INCHIRIA SI SEPARAT LA UN PRET TOTAL MAI AVANTAJOS.