






























Vă prezentăm spre vânzare o casă individuală modernă, cu regim de înălțime P+1+Pod, situată în Ștefăneștii de Jos, strada Salonta, într-o zonă rezidențială aflată în plină dezvoltare, apreciată pentru liniște, accesibilitate și proximitatea față de București.
Imobilul este construit în anul 2025, pe un teren de 242 mp, cu deschidere de 12 ml, având o amprentă la sol de 85 mp și o compartimentare eficientă, ideală pentru o familie care își dorește spațiu, lumină naturală și posibilitatea de a personaliza locuința după propriul stil.
Compartimentare
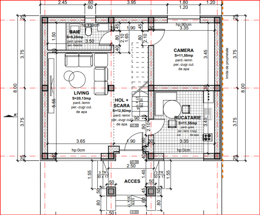
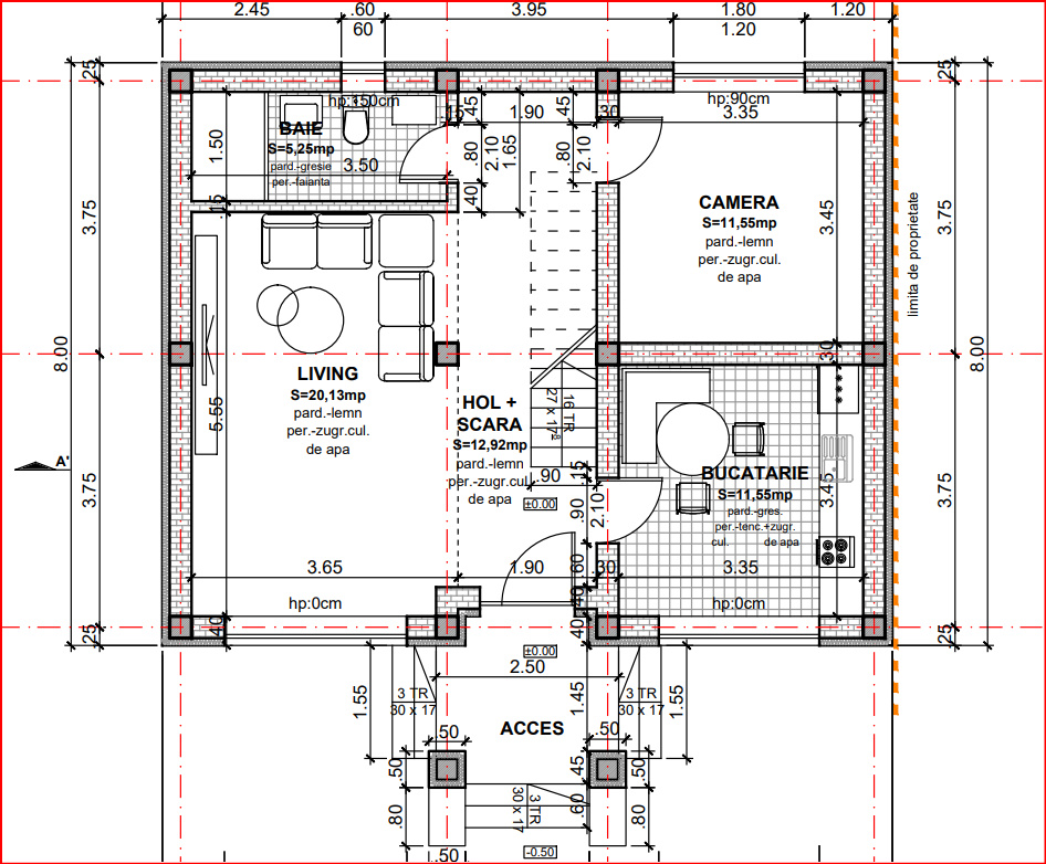
Parter
- living generos, luminos, cu ferestre mari, care oferă o deschidere plăcută către curte
- bucătărie
- cameră cu vedere spre partea din spate a casei
- baie spațioasă cu fereastră pentru aerisire naturală
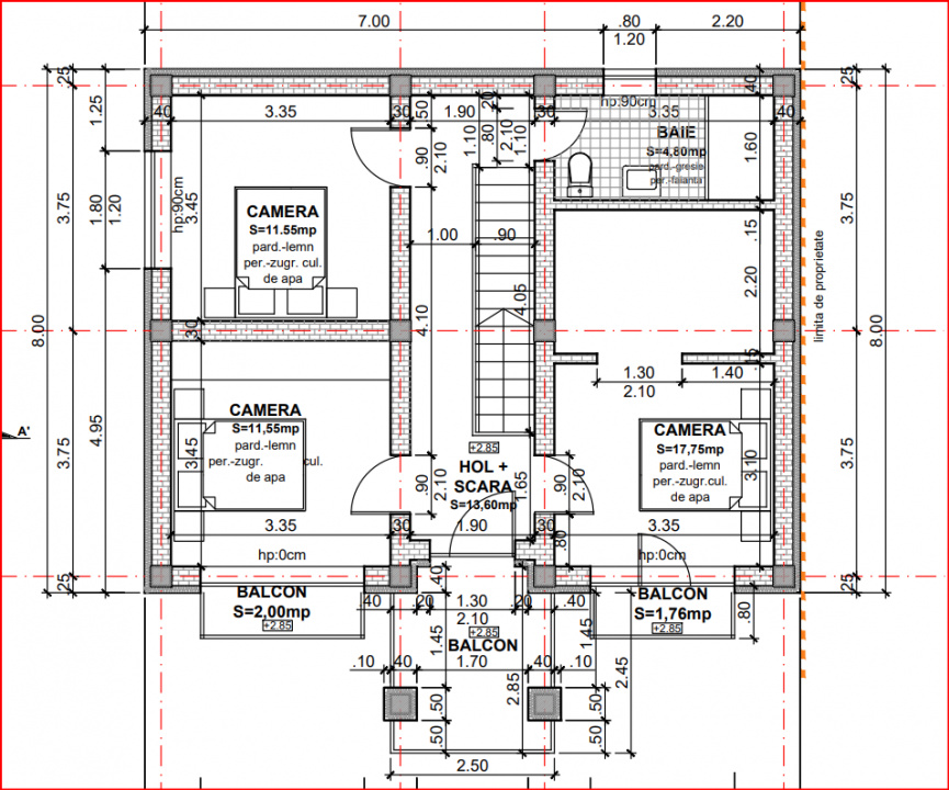
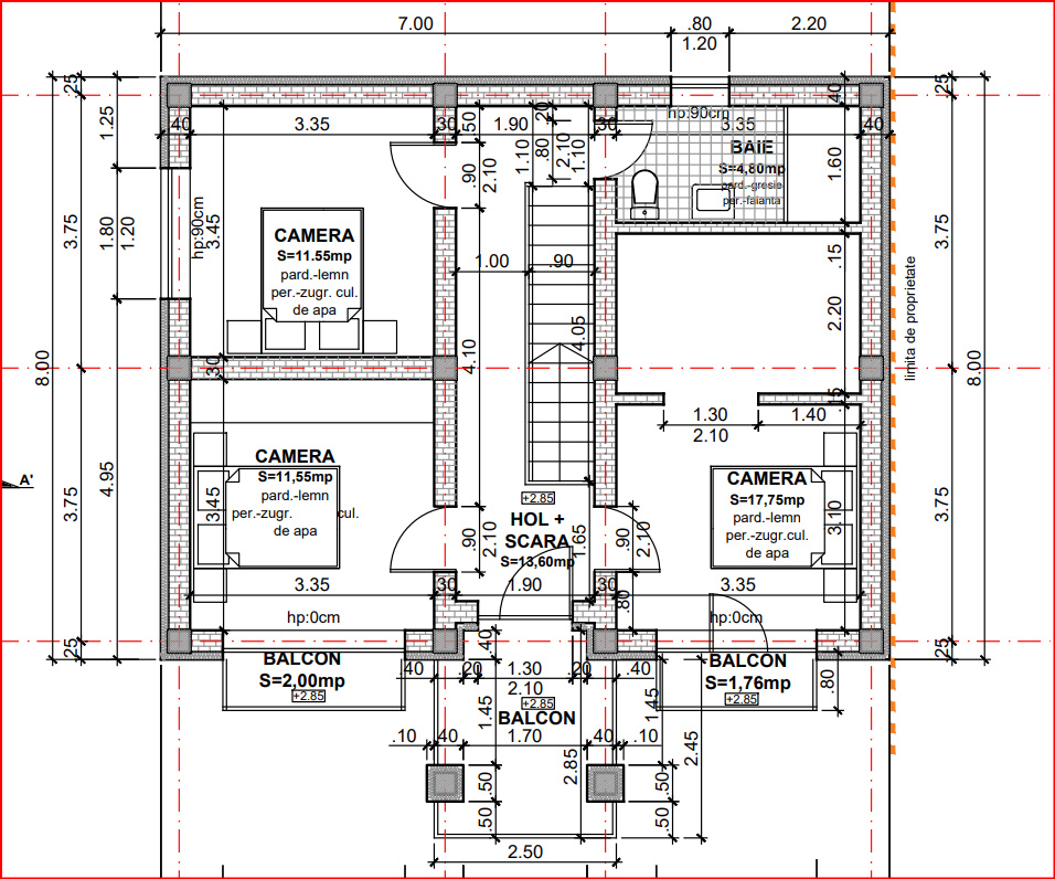
Etaj
- 3 dormitoare luminoase
- 2 dintre dormitoare au balcoane și ferestre panoramice
- baie spațioasă cu fereastră pentru aerisire naturală
- acces din hol către terasă
Pod
- spațiu generos pentru depozitare
Caracteristici și avantaje
✔ construcție nouă (2025)
✔ casă individuală, nu duplex
✔ compartimentare practică – 5 camere
✔ ferestre mari pentru lumină naturală
✔ posibilitatea de personalizare completă (se vinde la roșu)
✔ curte proprie
✔ zonă rezidențială liniștită
Localizare
Această proprietate reprezintă o oportunitate ideală atât pentru locuință proprie, cât și pentru investiție, într-o zonă cu potențial ridicat de dezvoltare.