
























Vă prezentăm spre vânzare o casă individuală modernă, construită în anul 2020, situată pe str.Rasaritului nr.25A, în comuna Cornetu, într-o zonă liniștită formată exclusiv din construcții noi, ideală pentru o familie care își dorește spațiu, confort și acces rapid către București.
Proprietatea este amplasată pe un teren generos de 549 mp, cu o deschidere de aproximativ 17 ml, curtea fiind complet împrejmuită și oferind spațiu pentru relaxare, grădină sau amenajări exterioare.
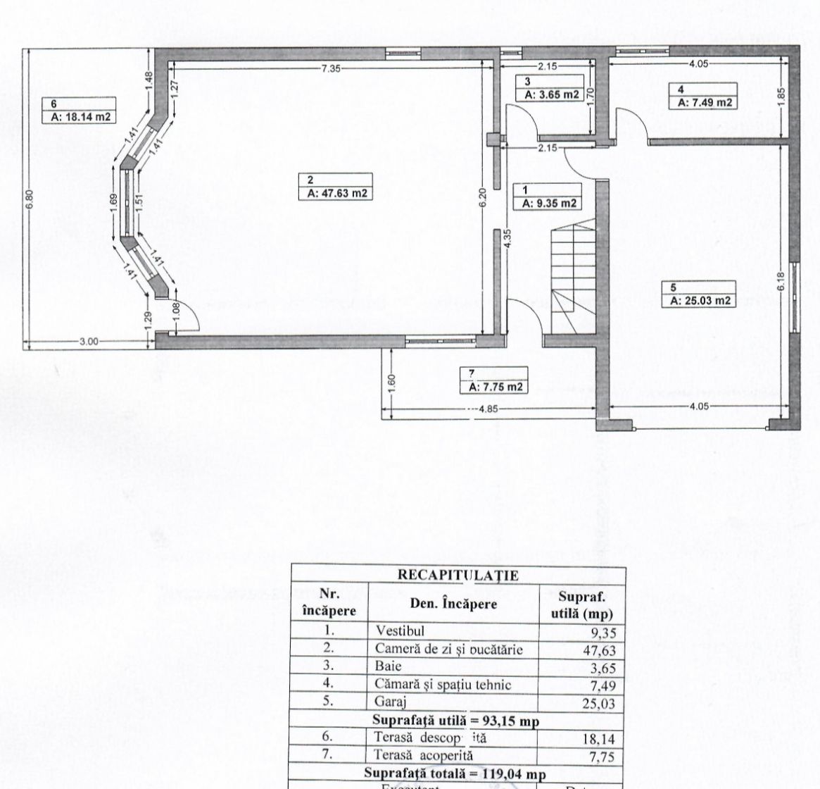
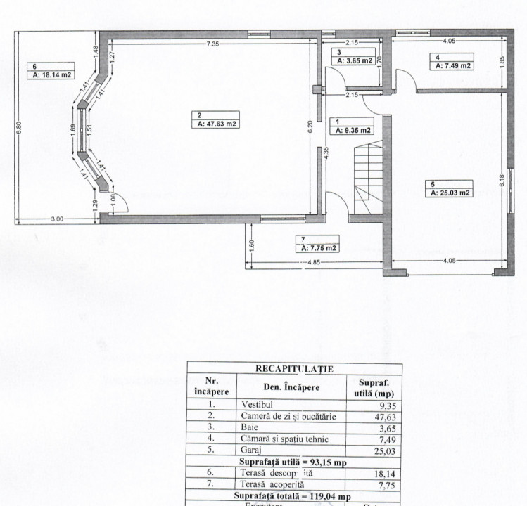
Casa are regim de înălțime P+1+Pod, o suprafață construită de aproximativ 222 mp și o suprafață utilă de 153 mp, fiind realizată pe structură solidă din beton și zidărie din cărămidă. Imobilul este complet finisat și racordat la toate utilitățile: apă, canalizare, gaz, energie electrică și internet.
Compartimentare
Parter:
- vestibul / hol de acces
- living spațios cu ieșire directă pe terasă
- bucătărie
- baie cu fereastră
- acces către garaj și camera tehnică
Etaj:
- 3 dormitoare luminoase cu balcoane
- spații pentru dressing
- baie cu fereastră
- balcon
- terasă închisă transformată într-o cameră suplimentară
În plus, casa beneficiază de poduri pentru depozitare, accesibile din camera situată deasupra garajului.
Dotări și beneficii
- centrală termică proprie
- aer condiționat
- bucătărie mobilată și utilată
- garaj + locuri de parcare în curte
- curte și grădină privată
- acces pe drum privatLocație
Proprietatea este situată într-o zonă rezidențială liniștită din Cornetu, cu acces rapid către București și către principalele artere de circulație din sudul Capitalei, fiind potrivită atât pentru locuire permanentă, cât și pentru investiție.